Hördt am Hutzelberg
In der Ortsgemeinde Hördt, im Landkreis Germersheim, ist auf dem Gelände, des Ende 2019 verstorbenen Künstlers Andreas Helmling, ein innovatives Bauprojekt geplant.
Ursprünglich war das Grundstück durch die ehemalige Zigarrenfabrik und später durch eine Textilfabrik bekannt, bevor ein Künstler-Atelier und Metallverarbeitender Betrieb entstand.
Die aktuell geplante Umnutzung beinhaltet
- 21 Wohnungen im Bestand und Neubau,
- 8 Townhouses und
- ein CoWorking-Space, wobei es sich um großräumige Büroflächen handelt, die als gemeinschaftlich genutzte Büro-Arbeitsplätze für Freiberufler, StartUps, etc. genutzt werden sollen. Dabei wird die Büro-Infrastruktur inkl. Drucker, Netzwerk, Besprechungsräume, Sekretariat, etc. geteilt.
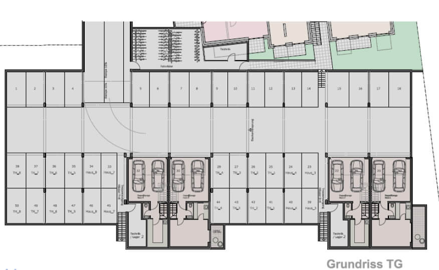
- Im hinteren Bereich des Grundstückes sind 8 Häuser geplant
(siehe Übersichtsplan weiter unten).
